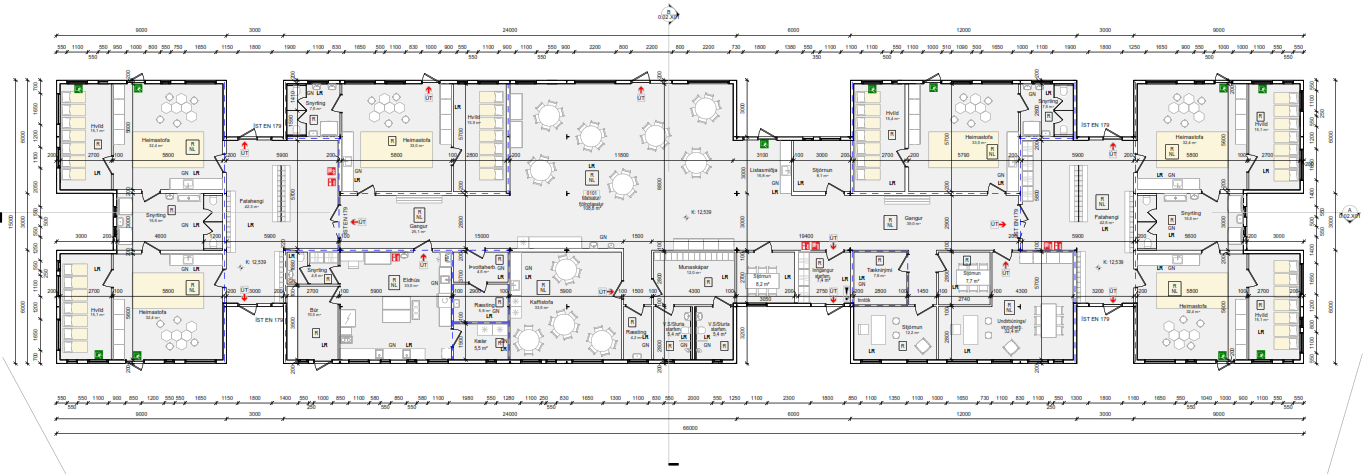
Leikskólinn Sunnuás
Terra Einingar afhenti leikskólann Sunnuás í maí árið 2024. Leikskólinn er settur saman úr 32.húseiningum og myndar 6.deildir ásamt salernum, matsal, aðstöðu fyrir starfsmenn (kaffistofu, skrifstofur, búningsherbergi, snyrting og sturtur), eldhús, hvíldarherbergi og fatahengi fyrir börnin. Leikskólinn er staðsettur á Dyngjuvegi 18,104 Reykjavík og er 847.fermetrar að stærð og getur tekið á móti 100 nemendum.
 
  
 











